Duplex familial de 130m² avec extérieurs
PARIS 75010
940 000 € *
* Honoraires à la charge du vendeur
Proposé par votre agence :
189 rue Faubourg Saint Martin
75010 Paris
Réf : 3324
Guy Hoquet Faubourg Saint-Martin
Exclusivité
Nous avons le plaisir de vous présenter notre appartement coup de coeur pour cette rentrée 2026, duplex familial, situé dans une copropriété avec ascenseur, offrant de beaux volumes et plusieurs espa... Voir plus
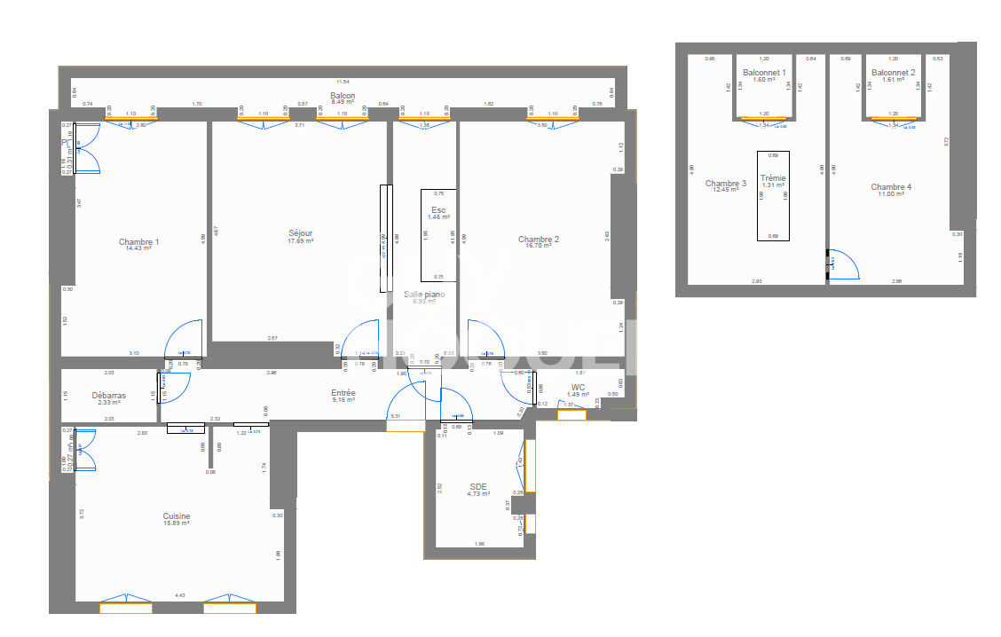
130 m²
5 pièce(s)
4 chambre(s)
1 sdb
Duplex familial de 130m² avec extérieurs
Descriptif
Réf : 3324
Guy Hoquet Faubourg Saint-Martin
Exclusivité
Nous avons le plaisir de vous présenter notre appartement coup de coeur pour cette rentrée 2026, duplex familial, situé dans une copropriété avec ascenseur, offrant de beaux volumes et plusieurs espa... Voir plus
130 m²
5 pièce(s)
4 chambre(s)
1 sdb
Fiche technique du bien
Bilan énergétique
Logement extrêmement performant
Logement extrêmement peu performant
passoire énergétique
consommation (énergie primaire)
212
kWh/m².an
émissions (gaz à effet de serre)
46*
kg CO₂/m².an
* Dont émissions de gaz à effet de serre
peu d'émissions de CO₂
émissions de CO₂ très importantes
46
kg CO₂/m².an
Les informations sur les risques auxquels ce bien est exposé sont disponibles sur le site Géorisques : www.georisques.gouv.fr
Estimation du coût annuel en énergie pour un usage standard entre 1990€ et 2740€ au 01/02/2023
Simuler votre prêt immobilier avec notre partenaire
Le quartier
Découvrez d’autres biens dans le quartier
Les horaires
Lundi
Fermé
Mardi
Fermé
Mercredi
Fermé
Jeudi
Fermé
Vendredi
Fermé
Samedi
Fermé
Dimanche
Fermé
